zurück

Stilvolle 3.5-Zi. Wohnung an urbaner Lage

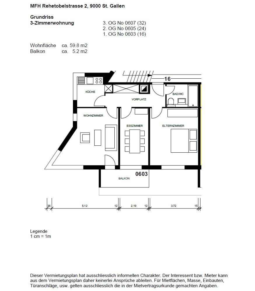
Anzahl Zimmer
3.0
Adresse
Rehetobelstrasse 2, 9000 St. Gallen, SG
Monatsmiete
CHF 1‘325.–

Wir vermieten per 01.02.2026 oder nach Vereinbarung diese grosszügige 3.5-Zi. Wohnung an der Rehetobelstrasse 2 in St. Gallen.

Die geräumige Wohnung ist mit folgenden Vorzügen ausgestattet:

- liebevolle Küche mit Glaskeramikherd
- Wohn-/ und Schlafbereich mit Laminatbelägen
- Einbauschrank im Eingangsbereich
- besonnter Balkon
- Lift
- Kellerabteil

Das Stadtzentrum, Öffentliche Verkehrsmittel sowie auch Einkaufsmöglichkeiten sind in wenigen Minuten erreichbar. Einen Autobahnanschluss befindet sich unmittelbar bei der Liegenschaft.

Ein Motorradparkplatz kann für monatlich CHF 25.00 dazu gemietet werden. Weitere Parkmöglichkeiten finden Sie in der umliegenden blauen Zone.

Gerne zeigen wir Ihnen die Wohnung an einem persönlichen und unverbindlichen Besichtigungstermin.

Angebot
Nettomiete
CHF 1‘030.–
Nebenkosten
CHF 295.–
Bruttomiete
CHF 1‘325.–
Verfügbar ab
01.12.2025
Informationen
Referenz
5722..3032
Adresse
Rehetobelstrasse 2
9000 St. Gallen, SG

Stockwerk
3
Anzahl Zimmer
3.0
Wohnfläche
60 m²
Eigenschaften
  • Balkon/Terasse/Sitzplatz
  • Garage
Download